
Concours, 5ème Prix, en collaboration avec AZAR et Biol Conseils - Immeuble de 180 logements - Quartier des Plaines-du-Loup, Lausanne : Au sud la façade s’ouvre largement à la lumière. Elle est équipée d’une structure spacieuse de balcons-loggias à caractère privé-collectif très flexible. Au nord, les ouvertures sont mesurées et protègent les pièces intimes des appartements. Les typologies sont toutes traversantes. Elles suivent une logique de distribution en bandes, qui permet une gradation privé-public stricte qui commence au nord, avec les chambres à coucher, les services, puis le séjour cuisine au sud et l'espace à caractère semi-privé de balcon-loggia qu’il est possible de mutualiser avec celui de ses voisins - novembre 2017

Réalisation de l'extension des ateliers Néon ABC SA, de nouvelles surfaces locatives de bureau et d'un showroom. Implantée sur une parcelle extrêmement exigüe au centre de Lausanne, accolée à l'usine existante, la construction de cette addition représentait un défi. D'importants travaux spéciaux garantissant la stabilité du bâtiment existant et une planification précise des travaux ont permis de construire la nouvelle extension, liée sur 24m aux ateliers en fonction sans engendrer une seule journée d'interruption de la production - projet 2011 - réalisation 2014-2015

Réalisation d'une villa mitoyenne. Le volume correspondant à chaque logement a été décalé et légèrement pivoté afin de garantir une qualité d’ensoleillement et de vue à tous ainsi qu’un excellent sentiment d’intimité. Le volume a également été évidé pour créer des terrasses privatives permettant de se protéger du soleil au rez ou, au contraire, d’offrir ensoleillement et vue à l’étage. Structurellement, les dalles, murs porteurs et façades ont été réalisés en béton - projet 2012 - réalisation 2013-2014

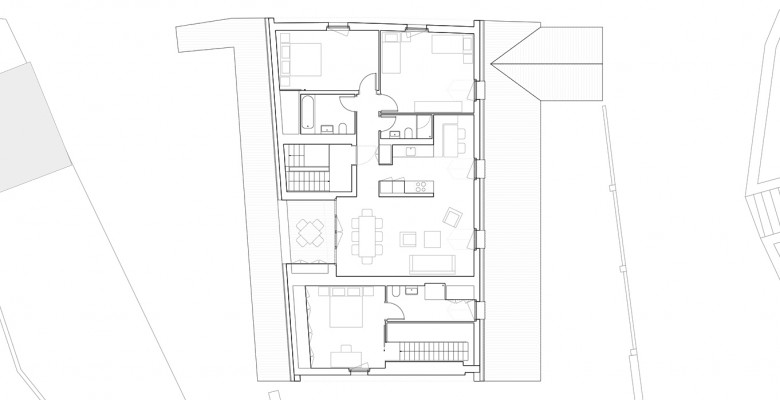
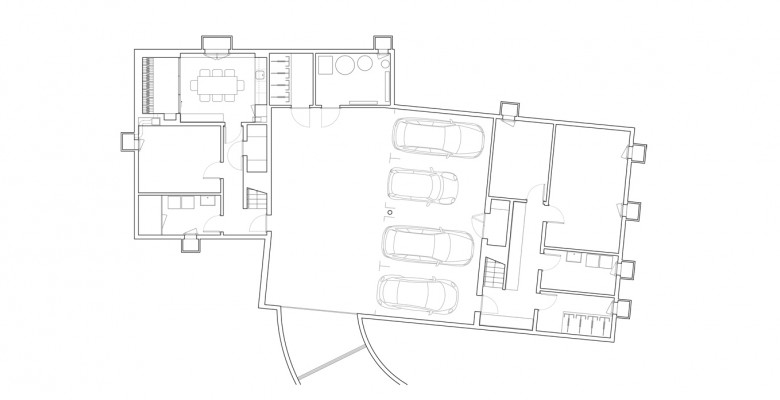
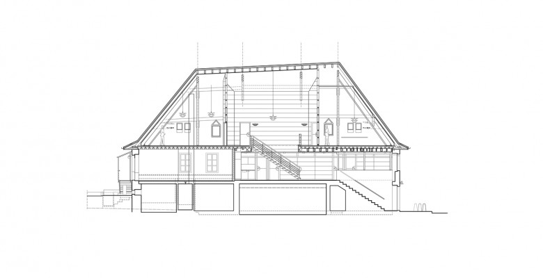
Transformation totale d'une ferme traditionnelle située au cœur d'un village vaudois. Suppression de la totalité des murs intérieurs existants, remplacement de la charpente et création de trois appartements dont un en duplex - projet 2011 - réalisation 2012-2013

Rénovation de 100 appartements pour la Caisse de Pension de la Commune de Lausanne. Divisée en quatre phases, cette rénovation intérieure lourde comprend: les finitions, le système de chauffage, les sanitaires, les cuisines et la mise à niveau des propriétés acoustiques aux normes actuelles - projet 2007 - phases 1 à 4 réalisées de 2010 à 2016

Projet d'un nouvel ensemble de villas et élaboration de son PAD. Un soin particulier est apporté à l’intégration des parkings afin de minimiser la présence de l’automobile au sein du quartier, pour le voisinage, aussi bien que dans le paysage. La déclivité du terrain permet de mettre en place un système de plateforme opérant comme couvert de parking d’une part, mais surtout, au-dessus, comme espace de vie occupé de cheminements piétons, de terrasses, et végétalisé par endroit - PAD approuvé - réalisation en cours

Noté 2 au recensement architectural vaudois, cette église apparaît pour la première fois dans des écrits en 1228. Trop petite, elle est reconstruite en 1712-14. Ce rare exemple d’église/grenier sera partiellement restauré en 1897-98 et en 1966-70. D’autre part, un orgue y est installé en 1955 - La Commune de Sullens commandite ATAU pour effectuer une rénovation totale en 2004 - réalisation 2006-2008

Réalisation d'un ensemble de 38 villas et de son PAD au Val-de-Ruz, Neuchâtel - Ce projet résidentiel est composé de villas contiguës et individuelles à coûts modérés, d'une maison de quartier et d'un parking souterrain. Malgré un budget limité, l'ensemble propose des espaces extérieurs particulièrement soignés avec notamment: place de jeux, terrain de sports, piscine et mini-golf. Ces éléments communs, présents dès la conception, créent une grande cohésion dans ce quartier à forte densité - plan de quartier 2006-2008 - réalisation 2010-2013

Réalisation d'un immeuble de 6 appartements, dont 2 en duplex, à Lausanne - Cette construction a la particularité d'avoir un noyau compact central regroupant les techniques et une structure porteuse ponctuelle permettant d'avoir différentes typologies pour chaque appartement et de les faire évoluer dans le temps, en fonction des besoins - projet 1989 - réalisation 1990-1991

Rénovation de la Maison de commune de Sullens - Construction importante du patrimoine local, elle accueille dès le 18ème: salles d'école, forge, four, pressoir, écurie et remise. Pour cette transformation intérieure, des cloisons structurées à panneaux bois ou vitrées ont été sélectionnées. Structurellement, la charpente a été remplacée par quatre fermes en lamellé collé libérant un espace généreux aux combles. A l'extérieur, une nouvelle entrée et des lucarnes entièrement vitrées ont été créées - Mandat sur concours - projet 1997 - réalisation 1999

Concours, 1er Prix, en collaboration avec Biol Conseils et l'artiste Olivier Estoppey - Requalification de la route cantonale RC401 - Vaud/Neuchâtel : ce projet lauréat "l'impasse ou l'échappée" portait sur la redéfinition et la revalorisation des rapports historiques, morphologiques, géographiques et paysagers dans lesquels s'inscrit la RC 401, de Grandson à Vaumarcus dans les cantons de Vaud et de Neuchâtel. Photos Guillaume Estoppey - projet 2001

Concours - Infrastructures viticoles - Leytron : Des lignes de vignes à l’infini qui montent du Rhône pour mourir tout là-haut contre l’abrupte Haut de Cry… Ce territoire d’une implacable linéarité soudain se plisse et s’élève pour accueillir sous un même toit les nouveaux locaux de la cave du Grand Brûlé. Quatre volumes s’unissent pour prolonger et ouvrir vers le Sud la structure existante de la bâtisse de 1976. Deux barres de circulation, véritables colonnes vertébrales, irriguent horizontalement et verticalement le nouveau projet. Ces quatre volumes, morcelé mais homogène, se parent d’un même habit à l’image du territoire viticole valaisan, pour esquisser les contours du nouveau Centre de compétence du domaine du Grand Brûlé - mai 2015

Concours - Collège et salle de gymnastique - Les fiches, Lausanne : Le programme s’organise en volumes rectangulaires disposés perpendiculairement ou parallèlement les uns aux autres. Cette géométrie, à priori rigide, s’intègre remarquablement bien au tissu bâti projeté et à ses cheminements. Le volume principal, implanté sur un axe Nord-Sud fait office d’écran délimitant: le minéral et le végétal, les nuisances et le calme. Il marque l’entrée du quartier des Fiches. Le préau est scindé en deux niveaux reliés par des escaliers en gradins. Cette ”cassure” crée la liaison Est-Ouest - février 2015

Concours - Salle de gymnastique et des fêtes - Cossonay : Situé au centre de l'agglomération, le projet est totalement enterré, à l'exception des salles de théorie et de la moitié supérieure de la salle de gym, du réfectoire et du hall. La partie émergée de ces espaces apparaît sous la forme d'une "boîte" légère recouverte de fines lamelles de mélèze filtrant la lumière naturelle de jour et diffusant la lumière artificielle lors de la tenue d'évènements nocturnes - projet 2010

Concours - Complexe scolaire à réaliser en trois étapes - Féchy : En rase campagne, trois volumes rectangulaires simples sont posés dans le paysage. Les différents espaces, parés de couleurs en fonction de leur programme, apparaissent en filigrane derrière la façade structurelle. Distribution, vestiaires et services sont organisés dans une "colonne vertébrale", elle aussi colorée. Des puits apportent lumière naturelle et ventillation à tous les étages - projet 2010

Concours, en collaboration avec etal collaborative New York - Traitement graphique des surfaces piétonnes de Times Square - New York : Nous avons approché ce projet avec d'une part le blanc et le noir, en opposition au contexte ultra saturé de Time Square et d'autre part, le code barre, emblème de la consommation, mais également: support permettant d'intégrer des messages dans de nouveaux rubans piétonniers pas si innocents - projet 2011

Conférences - V.O.C. ou "Validity Of the City" - New York City : Cédric Cornu, alors basé à New York City, et un groupe d'architectes désirent confronter leurs analyses du développement urbain des cinq "boroughs" newyorkaises aux regards de leurs amis "non initiés". "V.O.C." est née: plateforme de rencontres et de débats multidisciplinaires, mêlant initiés et profanes, ayant pour but d'élargir le débat et de questionner les idées formatées des professionnels de l'urbanisme - plus de 20 conférences de 2006 à 2007

Concours "Brooklyn Water Front", en collaboration avec etal collaborative New York et Antonio Furgiuele - Créer une scène de concert éphémère - Brooklyn, New York : Dans notre proposition, la scène grandie au fil du temps grâce aux matériaux provenant des bâtiments détruits qui sont placés dans une structure en gabions. Plus qu’un lieu culturel, cette structure cherche à sensibiliser et questionner la communauté sur le développement anarchique et frénétique de Brooklyn - projet 2010

Recherche - Groupe e2 - Paris : Dans la continuité de son diplôme sur les espaces en friches du Grand Paris, Cédric Cornu collabore, en tant que membre du Groupe e2, à une réflexion à l'échelle internationale sur la thématique de l'"entre deux" urbain au travers de l'organisation du concours d'idées E2 Contest. Résultats, analyses et interviews des membres du jury furent compilés dans une publication éditée à 2000 exemplaires, distribuée par ACTAR. De plus, trois expositions prirent place successivement au Pavillon de l'Arsenal de Paris, à l'EPF de Lausanne, et à la Biennale de San Paolo - concours 2001 - publication 2002 - expositions 2002 à 2003

ATAU compte aujourd'hui cinq collaborateurs: trois architectes EPFL, dont un urbaniste REG A/FSU, une graphiste et une secrétaire. Deux architectes avec plus de 40 ans de métier et un architecte avec une solide expérience internationale acquise notamment chez Richard Meier & Partners (New York) et OMA (Rotterdam) offrent un cocktail de compétences idéal en termes de créativité, d’expertise, de gestion, et de suivi à même de gérer des projets d’architecture complexes aussi bien dans la construction neuve que dans la rénovation. Notre expérience et notre qualification en tant qu’urbaniste nous permettent également d’élaborer des projets d’envergure du plan de quartier à la réalisation.

ATAU, qui signifie Atelier d’Architecture et d’Urbanisme, est fondé en 1974 par Philippe Cornu et Giovanni Fabrizio, tous deux architecte EPFL. Dès son fondement, en plus de l'architecture, ils se spécialisent en urbanisme et aménagement du territoire. Dès 1977, ATAU est reconnu par l’institut d'aménagement du territoire (ORL) et devient membre de la Fédération Suisse des Urbanistes (FSU). Après le décès accidentel de Giovanni Fabrizio en 1977, Marina Cornu s'associe à l’atelier. En 2011, Cédric Cornu devient le 3ème associé. Depuis sa création, ATAU a réalisé plus d'une quarantaine de projets d'architecture, plusieurs dizaines de plans de quartier et traité de l'aménagement du territoire d'une quarantaine de communes.

Av. de Sévelin 13E, 1004 Lausanne, 8ème étage.